Подзвонити Повідомлення

ексклюзив Продам 3-к квартиру 63м2 на Євгена Коновальця (Щорса) вул. 37, Печерський р-н (центр), в Печерському районі, Київ, метро Печерська

85 000 $
+3.8%
3 642 129 грн
1 350 $ /m2
 ексклюзивний договір

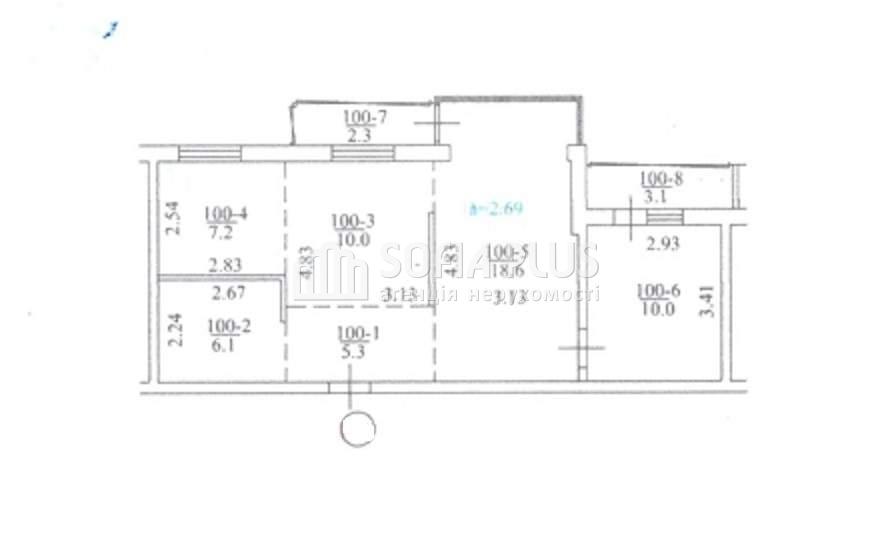
Площа:
63 / 38.6 / 7.2 м2
Кімнат:
3
Тип:
Роздільні

Поверх:
1 из 9
Стіни:
Керамзитобетон

Без внутрішніх робіт, два балкона, один санвузол роздільний

Код:
1940738
Оновлене:
30-04-2026
Перегляди:  73
АН SOFIA PLUS
Наталія
06x-xxx Показати
АН SOFIA PLUS

Невеличка трикімнатна поруч з метро Печерська. Розібрана до бетона, підготовлена для втілення ідей з перепланування в велику двокімнатну квартиру. У квартирі є балкон та лоджія, усі вікна виходять у просторий двір- сквер з дитячою площадкою. Дуже зручне та безпечне місце у центрі для прожівання. Метро Печерська в 5 хвилинах. Багато супермаркетів, два ВУЗа, дитсадки та ліцеї. Ціна 1300у.е./кв.м. Без коміссії. | Ексклюзивний договір.


Адреса будинку: Євгена Коновальця (Щорса) вул., 37, Київ, Печерський район