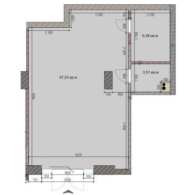
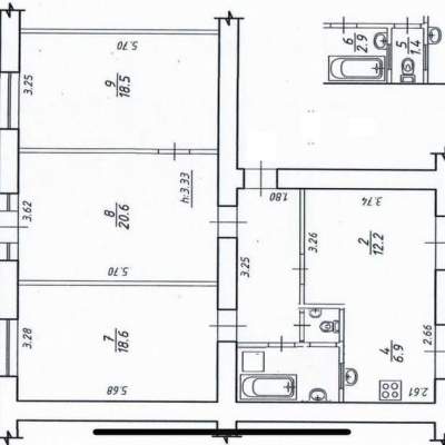
Зняти нерухомість ЖК Престиж Холл Київ, Печерський район, недорого — Оренда нерухомості ЖК